Banking on Coffee
Financial institutions build on-site coffee shops to draw customers.
Barflow Breakdown: Seattle’s Anchorhead Coffee
Former globe-trotting audio engineers Jake Paulson and Mike Steiner take on Seattle's coffee scene.
The Gentlemen Baristas
Coffee with class at Edward Parkes and Henry Ayers' London café.
Cat & Cloud Coffee
Chris Baca and Jared Truby serve playful surf vibes at Santa Cruz's Cat & Cloud Coffee.
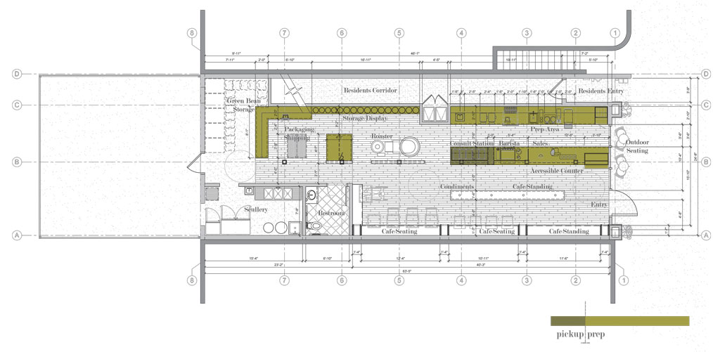
Steadfast Coffee
Steadfast Coffee's efficient and barista-first setup steps up their service game.
Torch Coffee Seville
The Parish sisters hope to spread specialty coffee to all corners of Spain.
Irving Farm Coffee Roasters—East 50th
Irving Farm Coffee Roasters new Midtown East café defies the cookie cutter.
Houndstooth Coffee @ Sylvan | Thirty
The Dallas café offers a full 360-degree coffee bar experience.









